Exercice 1. 15 points.
Cet exercice est un questionnaire à choix multiples (QCM).
Pour chaque question, une seule des trois réponses proposées est exacte.
Sur la copie, indiquer le numéro de la question et la réponse A, B ou C choisie. Aucune justification n’est demandée.
Aucun point ne sera enlevé en cas de mauvaise réponse
Question 1.
Parmi les nombres suivants, lequel
est premier ?
719 ; 965 ; 687.
Un nombre premier possède deux diviseur, 1 et lui même.
965 n'est pas premier, il est divible par 5.
687 n'est pas premier, il est divisible par 3.
Question 2.
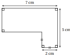
Quelle est l’aire de la figure ci-dessous ? 24 cm
2 ; 140 cm
2 ;
25 cm2.

Aire du rectangle de côtés 7 cm et 3 cm : 7 x3 = 21 cm
2.
Aire du carré de côté 2 cm : 2 x 2 = 4 cm
2.
Total : 25 cm
2.
Question 3.
Une de ces fonctions est affine.
Laquelle ?
f(x) = 3(x+1) ; g(x) = 5 /x +1 ; h(x) = x
2+1.
Une fonction affine est du type f(x) = ax +b avec a et b réels.
f(x) = 3x+3.
Question 4.
La distance de Tontouta à Narita est égale à environ 6 980 km.
Le vol Tontouta-Narita dure environ 9 heures. Quelle est la vitesse
moyenne, arrondie à la centaine
de km/h, de l’avion sur ce trajet ?
600 ;
800 ; 1000.
6980 / 9 =775 ~800 km / h.
Question 5.
Dans un collège de 730 élèves,
60 % des élèves sont des filles.
Quel est le nombre de filles dans ce
collège ?
438 ; 60 ; 670.
730 x 0,60=438 filles.
Exercice 2 : 20
points.
Thomas souhaite construire le cerf-volant représenté par la figure ci-dessous :
1. Calculer BE. On donnera une valeur arrondie au millimètre.
Rédiger la réponse en faisant apparaitre les différentes étapes.
Dans le triangle rectangle BDE : tan 30 =ED / BE = 20 / BE.
BE = 20 / tan 30 ~
34,6 cm.
Lorsque Thomas a essayé son cerf-volant, il s’est demandé à
quelle altitude il volait.
Il a attaché sa corde à un piquet planté dans le sol (point S)
puis est allé se placer (point T) parfaitement à la verticale
sous son cerf-volant (point H).
Il a alors mesuré certaines longueurs et a réalisé le schéma suivant.
2. Calculer HT, altitude à laquelle volait son cerf-volant.
On donnera une valeur arrondie au mètre. Rédiger la réponse en faisant apparaitre les différentes étapes.
Relation de Pythagore : HS
2=ST
2+HT
2.
HT2= HS2-ST2=20,52-7,62=362,49 ; HT = 19,03 ~ 19 m.
Il est conseillé de ne pas utiliser ce cerf-volant lorsque le vent dépasse 20 km/h. La météo
annonce un vent ne dépassant pas 15 nœuds.
On donne 1 nœud = 0,514 m/s.
3. Thomas peut-il faire voler son cerf-volant sans risque dans ces conditions ?
Justifier votre réponse.
15 x 0,514=7,71 m /s.
1 m/s = 3,6 km / h.
7,71 x3,6~27,8 km /h.
Thomas ne doit pas faire voler son cerf-volant.